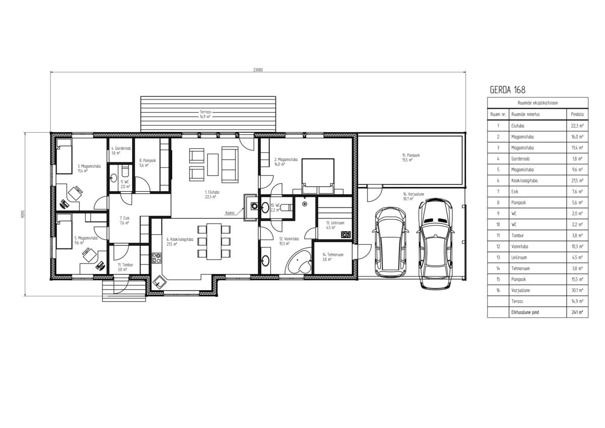
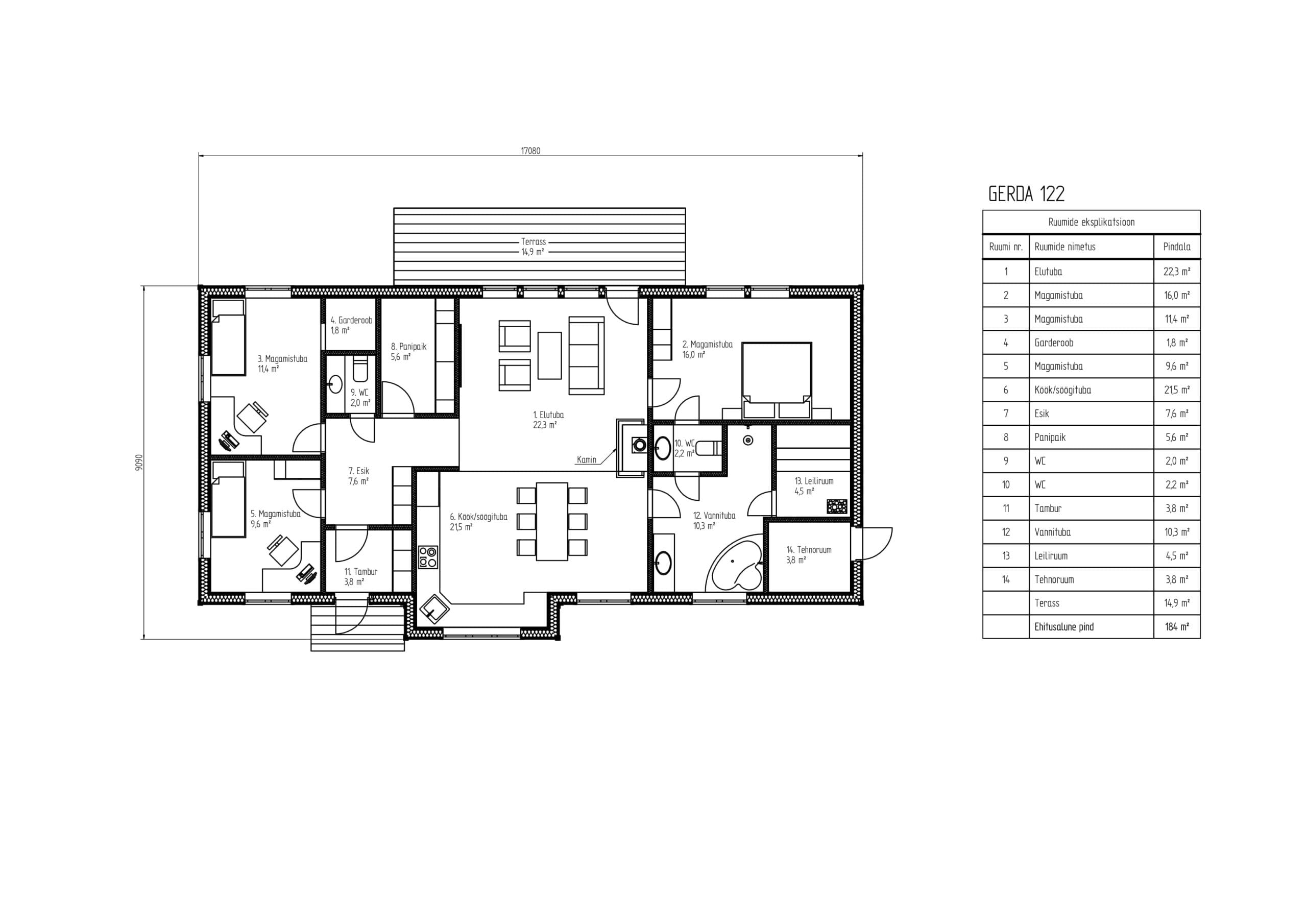
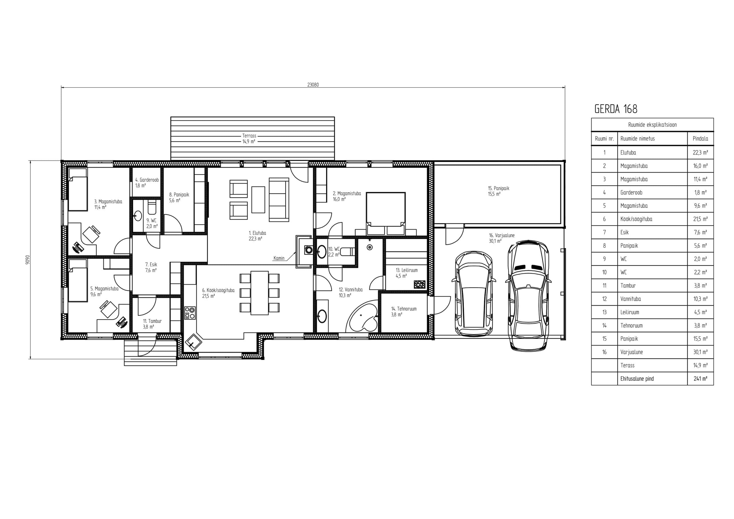
Gerda on ühekorruseline ja väga praktilise põrandaplaaniga maja, kus on mõnusalt ruumi kogu perele. Lisaks avarale köök-elutoale leiad standardlahendusest ka kaks tualetti ja kolm magamistuba, millest ühe juurde kuulub ka ruumikas garderoob. Samuti on õhtuseks lõõgastuseks majas saun ja vann.
Selleks, et Gerda sobiks kõikide sinu vajadustega, saame paindlikult muuta plaane ja tubade asetust või lisada abihooneid – kõik sinu soovide järgi.

Kodu kogu pere jaoks
Gerda maja ruumikas köök-elutuba on koht, kus pere saab kokku tulla ja mõnusas atmosfääris ühiselt aega veeta. Valgust ja avarust lisavad elutoale suured aknad ning hele siseviimistlus ja laminaatparkett. Läbi elutoa pääsed otse terrassile, kus suvekuudel on mõnus päikest nautida. Jahedamatel õhtutel loob kodusoojust ja hubasust elutoas olev kamin.
Nutikad ruumilahendused
Gerda maja pakub praktilise planeeringuga privaatsust ja mugavust igale pereliikmele. Kui aga ruumist peaks siiski puudu jääma, saame katusealuse välja ehitada suureks pööninguks, et põrandapinda oluliselt juurde luua. Soovi korral saab majale juurde ehitada ka välise panipaiga ja kuni kahekohalise varjualuse autodele.

Tipptasemel materjalid
Gerda maja ehitamiseks kasutame nii kvaliteetset ristkihtliimpuitu (CLT) kui ka puitkarkassi, et tagada Sulle parim lahendus.
CLT ristkihtliimpuit
Innovaatiline CLT (e. ristkihtliim) puit on 5x kergem kui betoon, kuid sama tugev. Taastuva materjalina seob CLT puit endaga CO2-te kogu oma eluaja jooksul, pakub tänu heale soojusjuhtivusele suurepärast sisekliimat ning aitab niiskustaset jagada ühtlaselt läbi kogu hoone, mis on eriti oluline allergikutele ja astmaatikutele. Lisaks töötab kihiline CLT puit hea tuletõkkena ning pakub ühtlast heliisolatsiooni.
Puitkarkass
Traditsiooniline puitkarkass on paindlik ja kuluefektiivne lahendus. Puitkarkassi kasutades saab maja ehitada kiiresti ning kohandada vastavalt sinu soovidele ja erilahendustele. Tänu kvaliteetsetele soojustusmaterjalidele on puitkarkassmajad väga energiatõhusad, hoides küttekulud madalad. Samuti kasutatakse karkassehituses puitu optimaalselt, et ehitada võimalikult ressursisäästlikult.

Roheliste lahendustega maja
Gerda maja on tulevikukindel valik, mis aitab sul elada targemalt ja jätkusuutlikumalt. Tänu uuenduslikele tehnoloogiatele ning keskkonnasõbralikele lisavõimalustele saad vähendada energiatarbimist ja muuta oma kodu veelgi ökonoomsemaks.
Energiatõhusa planeeringu ning kvaliteetsete soojustusmaterjalidega on Gerda maja juba algselt madalate küttekuludega A-energiatähisega hoone. Standardis on hoonel kuluefektiivne õhk-vesi soojuspump koos põrandaküttega, mille saad soovi korral välja vahetada maakütte vastu. Lisaks kasutame majas energiatõhusat soojustagastusega sundventilatsiooni.
Ehituse käigus saab majale paigaldada ka päikesepaneelid, mis aitavad katta suure osa kodu elektrikulust, eriti suvekuudel, kui päevavalgust on kõige rohkem. Samuti on võimalik maja valmislahendusele lisada elektriauto laadimispunkt, video- ja valvesüsteemid, valgustus välisfassaadile või muud lisad, mis teevad Sinu elu uues kodus mugavamaks.
Sinu unistuste kodu
Maja peab olema omaniku nägu ja iga meie ehitatud hoone on omailmeline. Selleks, et uus kodu sobiks kõikide vajadustega, saame projekti loomisel paindlikult muuta plaane ja kohandada neid sinu soovide järgi. Tänu kvaliteetsele tootmisele ning materjali omadustele vajame hoone paigaldamiseks vaid paari päeva. Sinu jaoks tähendab see lühemaid ooteaegu, olulist rahalist säästu ning paremat kvaliteeti.

Gerda 130
Vundament 152 m2
- Kolm magamistuba
- Kaks tualetti
- Saun
- Panipaik
- Garderoob
- Terrass
Gerda 138
Vundament 160 m2
- Kolm magamistuba
- Saun
- Kaks tualetti
- Garderoob
- Kaks panipaikka
- Varjualune kahele autole
- Terrass
Paketid
Tellides meilt maja saad valida võtmed kätte ja väljast valmis pakettide vahel. Loe lähemalt, mida need paketid standardlahendusena sisaldavad ja tutvu hindadega.
Võtmed kätte
Võtmed kätte puhul ehitame maja nii seest kui väljast valmis nii, et saad sinna peale tööde valmimist muretult kohe sisse kolida. Paketi hind sisaldab kõiki selleks vajaminevaid töid nagu näiteks siseviimistlus ja kommunikatsioonisüsteemide paigaldamine ning ühendamine.
Hindadele võivad kokkuleppel lisanduda juurde eritööd.
Väljast valmis
Väljast valmis paketi puhul ehitame maja karkassi koos katusega valmis. Kõik välitööd nagu välisvooderdus ja katusekate on maja üleandmise hetkeks tehtud, kuid enne sissekolimist tuleb sul hoolt kanda majasiseste ehitustööde ning lõppviimistluse eest.
Võtmed kätte pakett sisaldab:
- Arhitektuurne eelprojekt
- Ehitusloa taotlus
- Vundamenditööd
- Välised ehitustööd
- Ventilatsioonisüsteemi paigaldus
- Õhk-vesi soojuspumba paigaldus
- Majasisesed torutööd
- Majasisesed elektritööd
- Kommunikatsioonisüsteemide paigaldus
- Lae soojustamine
- Esiku, magamistubade, majasisese panipaiga, elutoa ja köök-söögitoa välja ehitamine
- Tamburi välja ehitamine
- WC(-de) välja ehitamine koos sanitaarseadmetega
- Pesuruumi välja ehitamine koos sanitaarseadmetega
- Sauna välja ehitamine koos kerise ja valgustuse paigaldusega
- Tehnoruumi välja ehitamine
- Kasutusloa taotlemine
Väljast valmis pakett sisaldab:
- Arhitektuurne eelprojekt
- Ehitusloa taotlus
- Vundamenditööd
- Välised ehitustööd
Ventilatsioonisüsteemi paigaldust, õhk-vesi soojuspumba paigaldust, majasiseseid torutöid ja kasutusloa taotlemist on võimalik paketile eraldi tasu eest juurde tellida.
Hinnad
Soovid kodu CLTst?
CLT (ristkihtliimpuit) on tugev, vastupidav ja suurepärase sisekliimaga materjal, mis tagab hoone energiatõhususe ja helikindluse. See võimaldab suuri avatud ruume ning naturaalse puitpinna esiletoomist.
Hind alates 199 000€
Soovid kodu puitkarkassist?
Puitkarkass on paindlik ja kuluefektiivne lahendus, mis võimaldab kiiret ehitust ning lihtsamat muudatuste tegemist tulevikus. See on kerge ja vastupidav valik, mis sobib erinevatesse keskkondadesse.
Hind alates 176 500€
Küsi pakkumist oma ideele
Kui tead, millist kodu soovid, siis küsi meilt pakkumist – aitame sul selle luua.
Meie meeskond toetab sind igas etapis – ideest teostuseni.
Ajatu ja funktsionaalne arhitektuur
Hästi läbimõeldud lahendused, mis loovad avara ja valgusküllase elukeskkonna.
Kiire ja sujuv valmimine
Võtmed kätte lahendus valmib keskmiselt 6–9 kuuga.
Kindel garantii
Konstruktsioonidele 50 aastat, ehitustöödele 2 aastat garantiid.
Paindlik suurus ja eelarve
Lahendus vastavalt sinu vajadustele ja eelarvele.
Tipptasemel ehitusmaterjalid
Kasutame vaid parimaid ja energiasäästlikke materjale.
Madal energiakulu
Maaküte ja A-sertifikaadiga sundventilatsioon tagavad optimaalsed küttekulud.
Võtmed kätte
Projekteerime ja ehitame võtmed kätte lahenduseni.
Suurepärane soojusisolatsioon
Meie tehnoloogia tagab majadel keskmise U-väärtuse 0,13 W/(m²K), mis vähendab soojakadu ja tagab energiatõhususe.
