See on ideaalne valik suuremale perele, kes hindab avarust, loogilist ruumijaotust ning nutikaid lisafunktsioone, mis muudavad igapäevaelu sujuvaks ja mõnusaks.
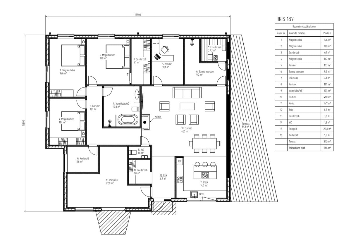
Iirise sisemus üllatab oma läbimõeldud ruumilahendusega, mis pakub rohkelt võimalusi nii elamiseks, puhkamiseks, töötamiseks kui ka kõige vajaliku hoiustamiseks. Avar elutuba, suur köök ja mahukas terrass moodustavad ühtse, toimiva terviku, mis toetab aktiivset ja mugavat pereelu igal aastaajal.

Kõik vajalik ja veelgi enam
Iirise standardlahenduses on neli magamistuba, kabinet, eraldi garderoobid ja kaks eraldiseisvat panipaika, mis aitavad kodus hoida korda ka suure pere puhul. Suur vannituba ning lisaks ka eraldi WC tagavad, et hommikused tipptunnid kulgevad sujuvalt. Majas on ka praktiline majapidamisruum ja ruumikas tehnoruum, kuhu mahuvad kõik vajalikud süsteemid ja hooajalised tarvikud.
Mõnus atmosfäär igal aastaajal
Maja keskmes on suur elutuba, kus kamin ja maast laeni aknad loovad valgusküllase ja kutsuva atmosfääri. Avatud köök ühendub elutoaga ühtseks, hästi toimivaks alaks, kus pere saab koos süüa teha, mängida ja puhata. Otse elutoast pääseb 34 m² suurusele terrassile, mis pakub suurepärase võimaluse suveõhtute, hommikukohvide ja perepidude nautimiseks värskes õhus.

Tipptasemel materjalid
Iirise maja ehitamiseks kasutame nii kvaliteetset ristkihtliimpuitu (CLT) kui ka puitkarkassi, et tagada Sulle parim lahendus.
CLT ristkihtliimpuit
Innovaatiline CLT (e. ristkihtliim) puit on 5x kergem kui betoon, kuid sama tugev. Taastuva materjalina seob CLT puit endaga CO2-te kogu oma eluaja jooksul, pakub tänu heale soojusjuhtivusele suurepärast sisekliimat ning aitab niiskustaset jagada ühtlaselt läbi kogu hoone, mis on eriti oluline allergikutele ja astmaatikutele. Lisaks töötab kihiline CLT puit hea tuletõkkena ning pakub ühtlast heliisolatsiooni.
Puitkarkass
Traditsiooniline puitkarkass on paindlik ja kuluefektiivne lahendus. Puitkarkassi kasutades saab maja ehitada kiiresti ning kohandada vastavalt sinu soovidele ja erilahendustele. Tänu kvaliteetsetele soojustusmaterjalidele on puitkarkassmajad väga energiatõhusad, hoides küttekulud madalad. Samuti kasutatakse karkassehituses puitu optimaalselt, et ehitada võimalikult ressursisäästlikult.

Roheliste lahendustega maja
Iirise maja on tulevikukindel valik, mis aitab sul elada targemalt ja jätkusuutlikumalt. Tänu uuenduslikele tehnoloogiatele ning keskkonnasõbralikele lisavõimalustele saad vähendada energiatarbimist ja muuta oma kodu veelgi ökonoomsemaks.
Energiatõhusa planeeringu ning kvaliteetsete soojustusmaterjalidega on Kerttu maja juba algselt madalate küttekuludega A-energiatähisega hoone. Standardis on hoonel kuluefektiivne õhk-vesi soojuspump koos põrandaküttega, mille saad soovi korral välja vahetada maakütte vastu. Lisaks kasutame majas energiatõhusat soojustagastusega sundventilatsiooni.
Ehituse käigus saab majale paigaldada ka päikesepaneelid, mis aitavad katta suure osa kodu elektrikulust, eriti suvekuudel, kui päevavalgust on kõige rohkem. Samuti on võimalik maja valmislahendusele lisada elektriauto laadimispunkt, video- ja valvesüsteemid, valgustus välisfassaadile või muud lisad, mis teevad Sinu elu uues kodus mugavamaks.
Sinu unistuste kodu
Maja peab olema omaniku nägu ja iga meie ehitatud hoone on omailmeline. Selleks, et uus kodu sobiks kõikide vajadustega, saame projekti loomisel paindlikult muuta plaane ja kohandada neid sinu soovide järgi. Tänu kvaliteetsele tootmisele ning materjali omadustele vajame hoone paigaldamiseks vaid paari päeva. Sinu jaoks tähendab see lühemaid ooteaegu, olulist rahalist säästu ning paremat kvaliteeti.

Iirise maja
284 m2
- Kolm magamistuba
- Avar elutuba
- Kabinet
- Saun
- Suur panipaik/ sahver
- Suur terrass
Paketid
Tellides meilt maja saad valida võtmed kätte ja väljast valmis pakettide vahel. Loe lähemalt, mida need paketid standardlahendusena sisaldavad ja tutvu hindadega.
Võtmed kätte
Võtmed kätte puhul ehitame maja nii seest kui väljast valmis nii, et saad sinna peale tööde valmimist muretult kohe sisse kolida. Paketi hind sisaldab kõiki selleks vajaminevaid töid nagu näiteks siseviimistlus ja kommunikatsioonisüsteemide paigaldamine ning ühendamine.
Hindadele võivad kokkuleppel lisanduda juurde eritööd.
Väljast valmis
Väljast valmis paketi puhul ehitame maja karkassi koos katusega valmis. Kõik välitööd nagu välisvooderdus ja katusekate on maja üleandmise hetkeks tehtud, kuid enne sissekolimist tuleb sul hoolt kanda majasiseste ehitustööde ning lõppviimistluse eest.
Võtmed kätte pakett sisaldab:
- Arhitektuurne eelprojekt
- Ehitusloa taotlus
- Vundamenditööd
- Välised ehitustööd
- Ventilatsioonisüsteemi paigaldus
- Õhk-vesi soojuspumba paigaldus
- Majasisesed torutööd
- Majasisesed elektritööd
- Kommunikatsioonisüsteemide paigaldus
- Lae soojustamine
- Esiku, magamistubade, majasisese panipaiga, elutoa ja köök-söögitoa välja ehitamine
- Tamburi välja ehitamine
- WC(-de) välja ehitamine koos sanitaarseadmetega
- Pesuruumi välja ehitamine koos sanitaarseadmetega
- Sauna välja ehitamine koos kerise ja valgustuse paigaldusega
- Tehnoruumi välja ehitamine
- Kasutusloa taotlemine
Väljast valmis pakett sisaldab:
- Arhitektuurne eelprojekt
- Ehitusloa taotlus
- Vundamenditööd
- Välised ehitustööd
Ventilatsioonisüsteemi paigaldust, õhk-vesi soojuspumba paigaldust, majasiseseid torutöid ja kasutusloa taotlemist on võimalik paketile eraldi tasu eest juurde tellida.
Hinnad
Soovid kodu CLTst?
CLT (ristkihtliimpuit) on tugev, vastupidav ja suurepärase sisekliimaga materjal, mis tagab hoone energiatõhususe ja helikindluse. See võimaldab suuri avatud ruume ning naturaalse puitpinna esiletoomist.
Hind alates 161 500 €
Soovid kodu puitkarkassist?
Puitkarkass on paindlik ja kuluefektiivne lahendus, mis võimaldab kiiret ehitust ning lihtsamat muudatuste tegemist tulevikus. See on kerge ja vastupidav valik, mis sobib erinevatesse keskkondadesse.
Hind alates 149 300 €
Küsi pakkumist oma ideele
Kui tead, millist kodu soovid, siis küsi meilt pakkumist – aitame sul selle luua.
Meie meeskond toetab sind igas etapis – ideest teostuseni.
Ajatu ja funktsionaalne arhitektuur
Hästi läbimõeldud lahendused, mis loovad avara ja valgusküllase elukeskkonna.
Kiire ja sujuv valmimine
Võtmed kätte lahendus valmib keskmiselt 6–9 kuuga.
Kindel garantii
Konstruktsioonidele 50 aastat, ehitustöödele 2 aastat garantiid.
Paindlik suurus ja eelarve
Lahendus vastavalt sinu vajadustele ja eelarvele.
Tipptasemel ehitusmaterjalid
Kasutame vaid parimaid ja energiasäästlikke materjale.
Madal energiakulu
Maaküte ja A-sertifikaadiga sundventilatsioon tagavad optimaalsed küttekulud.
Võtmed kätte
Projekteerime ja ehitame võtmed kätte lahenduseni.
Suurepärane soojusisolatsioon
Meie tehnoloogia tagab majadel keskmise U-väärtuse 0,13 W/(m²K), mis vähendab soojakadu ja tagab energiatõhususe.
