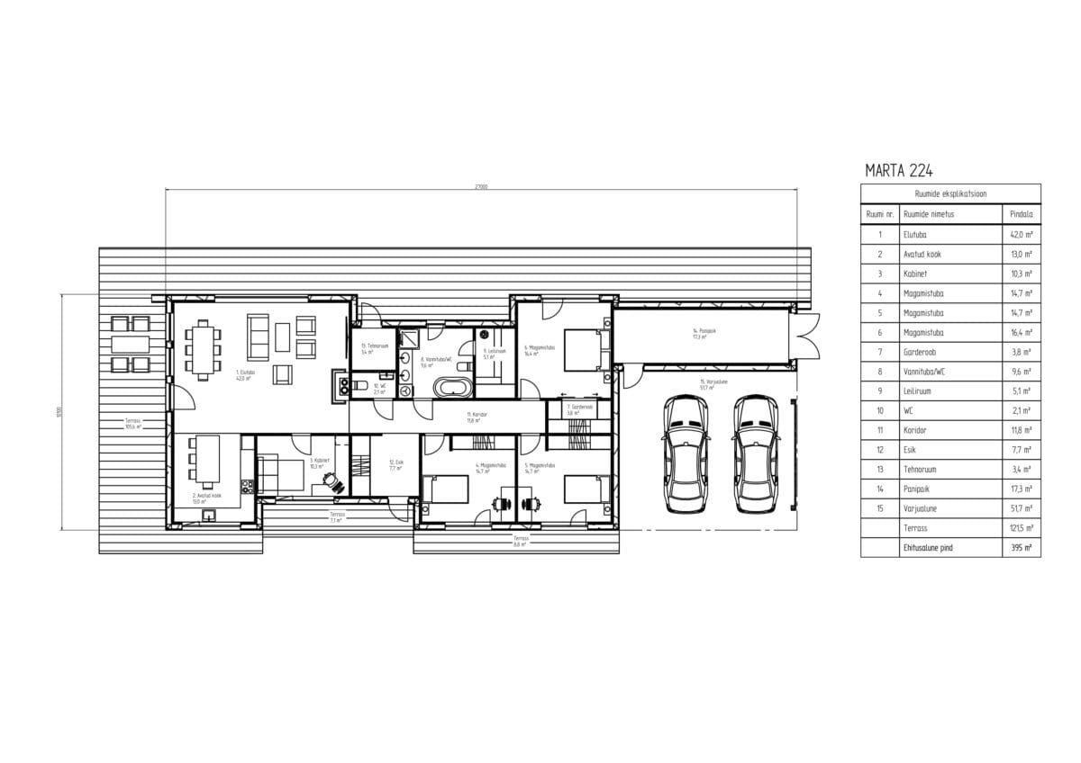
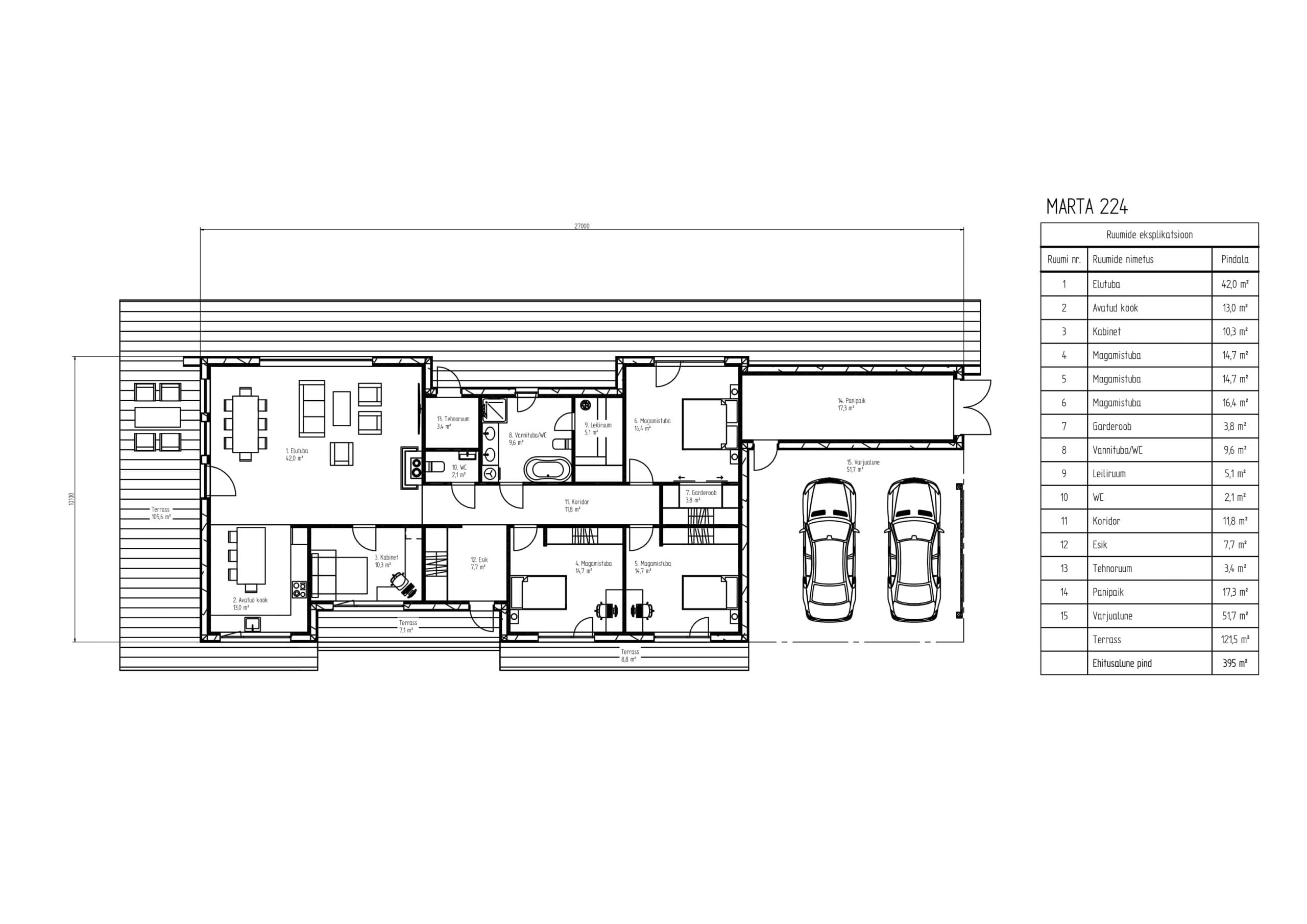
Marta maja

Hind alates 328 375 €

Marta maja on sulle ideaalne valik, kui hindad valgusküllast, avarat ja nutikalt planeeritud kodu, kus on ruumi nii pereeluks, tööks…

  • 395 m2
  • 4 magamistuba
  • Saun, kaks tualetti

Marta on ruumikas ja valgusküllane kodu kogu perele. Majal on kolm suurt magamistuba, eraldi väike garderoob, eraldi töötuba ning kõrgete lagedega avatud köök ja elutuba, mis moodustavad avara ning õdusa keskkonna, kus kõigil on nii privaatsust kui ka mõnus koos aega veeta. Funktsionaalsust lisavad WC-duširuum, lisa WC, tehnoruum ja panipaik mugavamaks elukorralduseks.c

Avar ja valgusküllane elutuba

Ruumika pereelamu südameks on ikka elutuba ja Marta maja puhul muudavad selle eriti valgusküllaseks ja avaraks suured aknad ja kõrge katuslagi. Lisaks akendest avanevale kaunile vaatele, saad elutoast minna otse terrassile, kus nautida ilma ja päikest. Jahedamatel õhtutel loob elutuppa hubasust ja kodusoojust kamin.

Maja, kus kõigel on oma koht

Marta majas on mõeldud kõigele – lisaks avaratele eluruumidele on siin ka soojendusega 17,3 m² panipaik, kuhu mahuvad nii jalgrattad, aiatööriistad, muruniidukid kui ka hooajaväline õuemööbel. Samuti on majal eraldi tehnoruum kütte- ja ventilatsiooniseadmete jaoks ning kahe autokohaga varjualune. Martat ümbritsevad kolmel küljel terrassid (kogupindalaga on 56,6 m²), kus iga ilmaga värsket õhku nautida ja perega koos mõnusalt aega veeta.

Tipptasemel materjalid

Marta maja ehitamiseks kasutame nii kvaliteetset ristkihtliimpuitu (CLT) kui ka puitkarkassi, et tagada Sulle parim lahendus.

CLT ristkihtliimpuit

Innovaatiline CLT (e. ristkihtliim) puit on 5x kergem kui betoon, kuid sama tugev. Taastuva materjalina seob CLT puit endaga CO2-te kogu oma eluaja jooksul, pakub tänu heale soojusjuhtivusele suurepärast sisekliimat ning aitab niiskustaset jagada ühtlaselt läbi kogu hoone, mis on eriti oluline allergikutele ja astmaatikutele. Lisaks töötab kihiline CLT puit hea tuletõkkena ning pakub ühtlast heliisolatsiooni.

Puitkarkass

Traditsiooniline puitkarkass on paindlik ja kuluefektiivne lahendus. Puitkarkassi kasutades saab maja ehitada kiiresti ning kohandada vastavalt sinu soovidele ja erilahendustele. Tänu kvaliteetsetele soojustusmaterjalidele on puitkarkassmajad väga energiatõhusad, hoides küttekulud madalad. Samuti kasutatakse karkassehituses puitu optimaalselt, et ehitada võimalikult ressursisäästlikult.

Roheliste lahendustega maja

Marta maja on tulevikukindel valik, mis aitab sul elada targemalt ja jätkusuutlikumalt. Tänu uuenduslikele tehnoloogiatele ning keskkonnasõbralikele lisavõimalustele saad vähendada energiatarbimist ja muuta oma kodu veelgi ökonoomsemaks.

Energiatõhusa planeeringu ning kvaliteetsete soojustusmaterjalidega on Gerda maja juba algselt madalate küttekuludega A-energiatähisega hoone. Standardis on hoonel kuluefektiivne õhk-vesi soojuspump koos põrandaküttega, mille saad soovi korral välja vahetada maakütte vastu. Lisaks kasutame majas energiatõhusat soojustagastusega sundventilatsiooni. 

Ehituse käigus saab majale paigaldada ka päikesepaneelid, mis aitavad katta suure osa kodu elektrikulust, eriti suvekuudel, kui päevavalgust on kõige rohkem. Samuti on võimalik maja valmislahendusele lisada elektriauto laadimispunkt, video- ja valvesüsteemid, valgustus välisfassaadile või muud lisad, mis teevad Sinu elu uues kodus mugavamaks.

Sinu unistuste kodu

Maja peab olema omaniku nägu ja iga meie ehitatud hoone on omailmeline. Selleks, et uus kodu sobiks kõikide vajadustega, saame projekti loomisel paindlikult muuta plaane ja kohandada neid sinu soovide järgi. Tänu kvaliteetsele tootmisele ning materjali omadustele vajame hoone paigaldamiseks vaid paari päeva. Sinu jaoks tähendab see lühemaid ooteaegu, olulist rahalist säästu ning paremat kvaliteeti.

Marta 180

Vundament 199 m2

  • Neli magamistuba
  • Garderoob
  • Kaks tualetti
  • Saun
  • Panipaik
  • Suur terrass

Paketid

Tellides meilt maja saad valida võtmed kätte ja väljast valmis pakettide vahel. Loe lähemalt, mida need paketid standardlahendusena sisaldavad ja tutvu hindadega.

Võtmed kätte

Võtmed kätte puhul ehitame maja nii seest kui väljast valmis nii, et saad sinna peale tööde valmimist muretult kohe sisse kolida. Paketi hind sisaldab kõiki selleks vajaminevaid töid nagu näiteks siseviimistlus ja kommunikatsioonisüsteemide paigaldamine ning ühendamine.
Hindadele võivad kokkuleppel lisanduda juurde eritööd.

Väljast valmis

Väljast valmis paketi puhul ehitame maja karkassi koos katusega valmis. Kõik välitööd nagu välisvooderdus ja katusekate on maja üleandmise hetkeks tehtud, kuid enne sissekolimist tuleb sul hoolt kanda majasiseste ehitustööde ning lõppviimistluse eest.

Võtmed kätte pakett sisaldab:

  • Arhitektuurne eelprojekt
  • Ehitusloa taotlus
  • Vundamenditööd
  • Välised ehitustööd
  • Ventilatsioonisüsteemi paigaldus
  • Õhk-vesi soojuspumba paigaldus
  • Majasisesed torutööd
  • Majasisesed elektritööd
  • Kommunikatsioonisüsteemide paigaldus
  • Lae soojustamine
  • Esiku, magamistubade, majasisese panipaiga, elutoa ja köök-söögitoa välja ehitamine
  • Tamburi välja ehitamine
  • WC(-de) välja ehitamine koos sanitaarseadmetega
  • Pesuruumi välja ehitamine koos sanitaarseadmetega
  • Sauna välja ehitamine koos kerise ja valgustuse paigaldusega
  • Tehnoruumi välja ehitamine
  • Kasutusloa taotlemine

Väljast valmis pakett sisaldab:

  • Arhitektuurne eelprojekt
  • Ehitusloa taotlus
  • Vundamenditööd
  • Välised ehitustööd

Ventilatsioonisüsteemi paigaldust, õhk-vesi soojuspumba paigaldust, majasiseseid torutöid ja kasutusloa taotlemist on võimalik paketile eraldi tasu eest juurde tellida.

Hinnad

Soovid kodu CLTst?

CLT (ristkihtliimpuit) on tugev, vastupidav ja suurepärase sisekliimaga materjal, mis tagab hoone energiatõhususe ja helikindluse. See võimaldab suuri avatud ruume ning naturaalse puitpinna esiletoomist.

Hind alates 354 645 €

Soovid kodu puitkarkassist?

Puitkarkass on paindlik ja kuluefektiivne lahendus, mis võimaldab kiiret ehitust ning lihtsamat muudatuste tegemist tulevikus. See on kerge ja vastupidav valik, mis sobib erinevatesse keskkondadesse.

Hind alates 328 375 €

Küsi pakkumist oma ideele

Kui tead, millist kodu soovid, siis küsi meilt pakkumist – aitame sul selle luua.

Meie meeskond toetab sind igas etapis – ideest teostuseni.

Ajatu ja funktsionaalne arhitektuur

Hästi läbimõeldud lahendused, mis loovad avara ja valgusküllase elukeskkonna.

Kiire ja sujuv valmimine

Võtmed kätte lahendus valmib keskmiselt 6–9 kuuga.

Kindel garantii

Konstruktsioonidele 50 aastat, ehitustöödele 2 aastat garantiid.

Paindlik suurus ja eelarve

Lahendus vastavalt sinu vajadustele ja eelarvele.

Tipptasemel ehitusmaterjalid

Kasutame vaid parimaid ja energiasäästlikke materjale.

Madal energiakulu

Maaküte ja A-sertifikaadiga sundventilatsioon tagavad optimaalsed küttekulud.

Võtmed kätte

Projekteerime ja ehitame võtmed kätte lahenduseni.

Suurepärane soojusisolatsioon

Meie tehnoloogia tagab majadel keskmise U-väärtuse 0,13 W/(m²K), mis vähendab soojakadu ja tagab energiatõhususe.

Sinu kodu, Sinu tingimustel.

Võta ühendust ja arutame võimalusi täpselt Sinu vajaduste järgi.

Voldi tee 12, Tabivere, 49127, Tartumaa

+372 53 430 630

CLT PanelHouses OÜ

Reg. nr. 12527468

KMKR nr: EE101902421

A/a EE531010220254593227

Saada hinnapäring

    Kontaktandmed

    Ehitusandmed

    Marta maja

    Marta maja

    Muu info